A dark, unused area converted into extra living space.
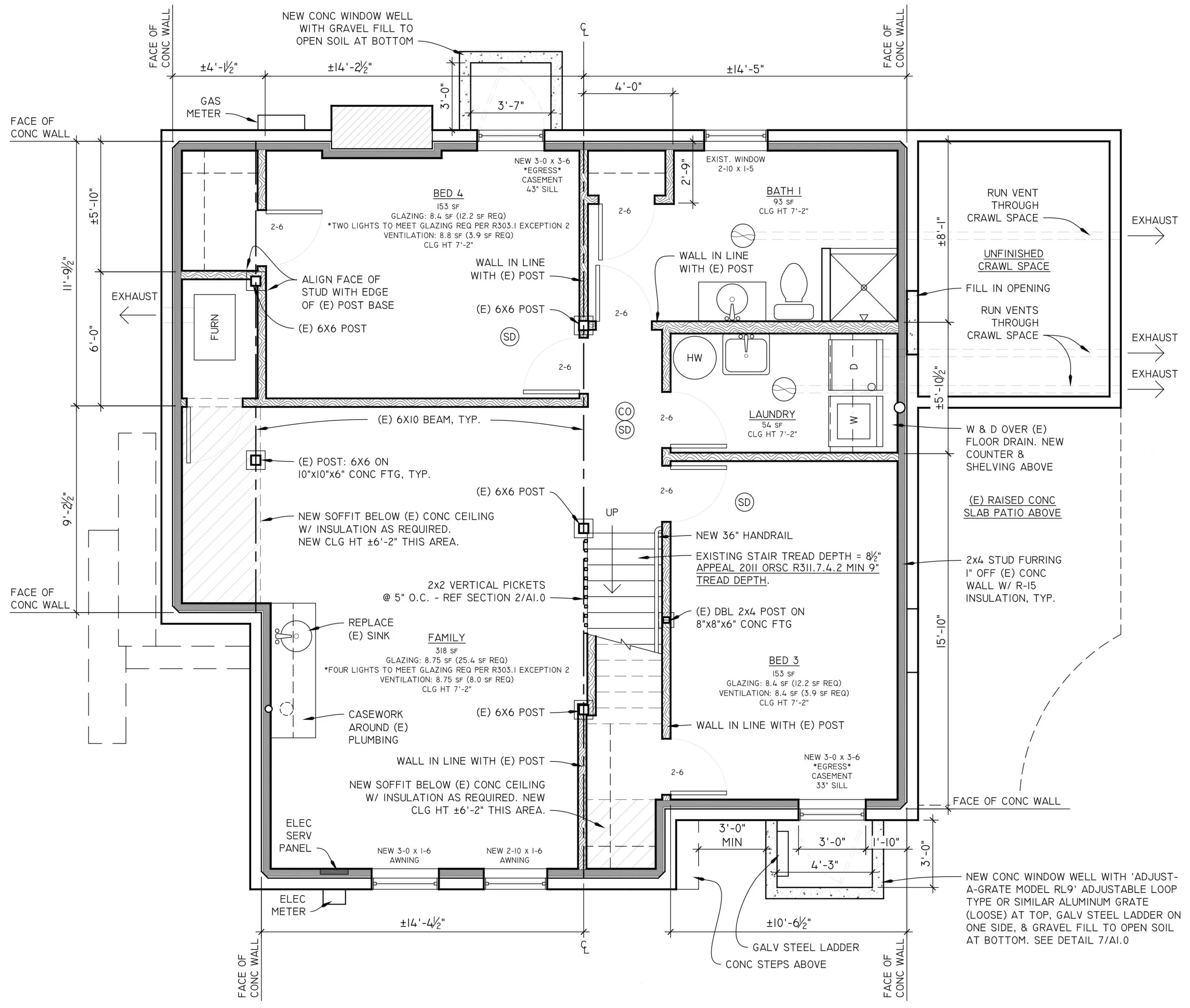
This 1947 home in the Piedmont Neighborhood offered an easy basement conversion, having 7'-4" of headroom, sufficient stairs, and no need for structural changes. The remodel of 939 sf in the Basement added two Bedrooms, a Family Room, a Bathroom, and a Laundry Room. New windows, including two Bedroom egress windows were added along either side. The end result was a four-bedroom, two-bath home with over 2,400 sf of living space.
Services: Design, Construction Drawings, Permitting
Interior, Family Room
Interior, Stair
Interior, Bathroom
Lower Level Plan
